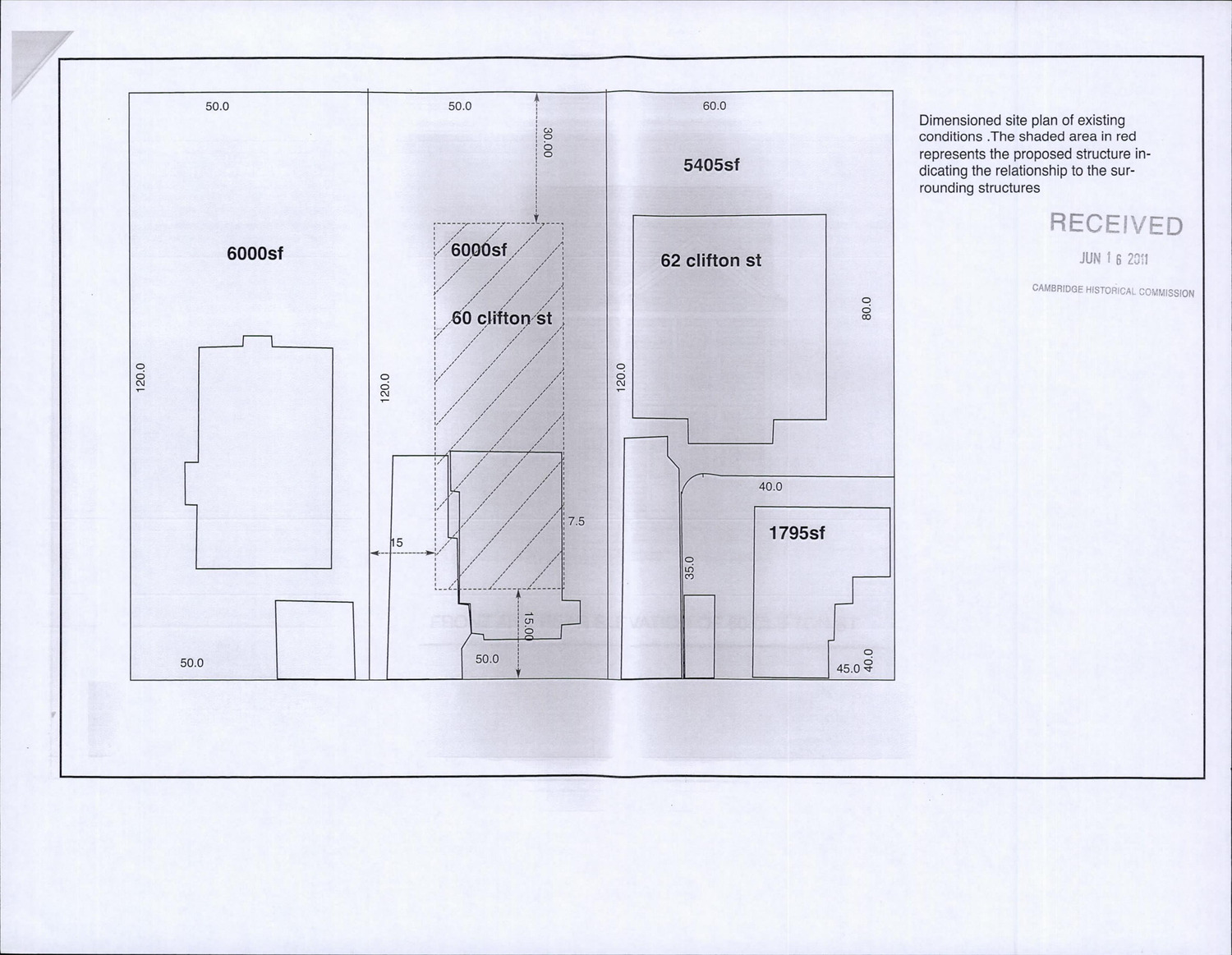
60 Clifton St - Plan View
- Neighborhood :
- North Cambridge
- Document Type :
- Plan View
- Research District :
- Northwest Cambridge
- Citation :
- Cambridge Historical Commission, Digital Architectural Survey and History.
- Pages :
- 3
- Rights :
- Rights status not evaluated.
- Place Item :
- 60 Clifton St
- Folder:
- Clifton St


