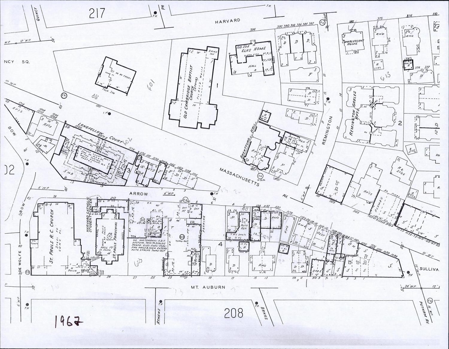
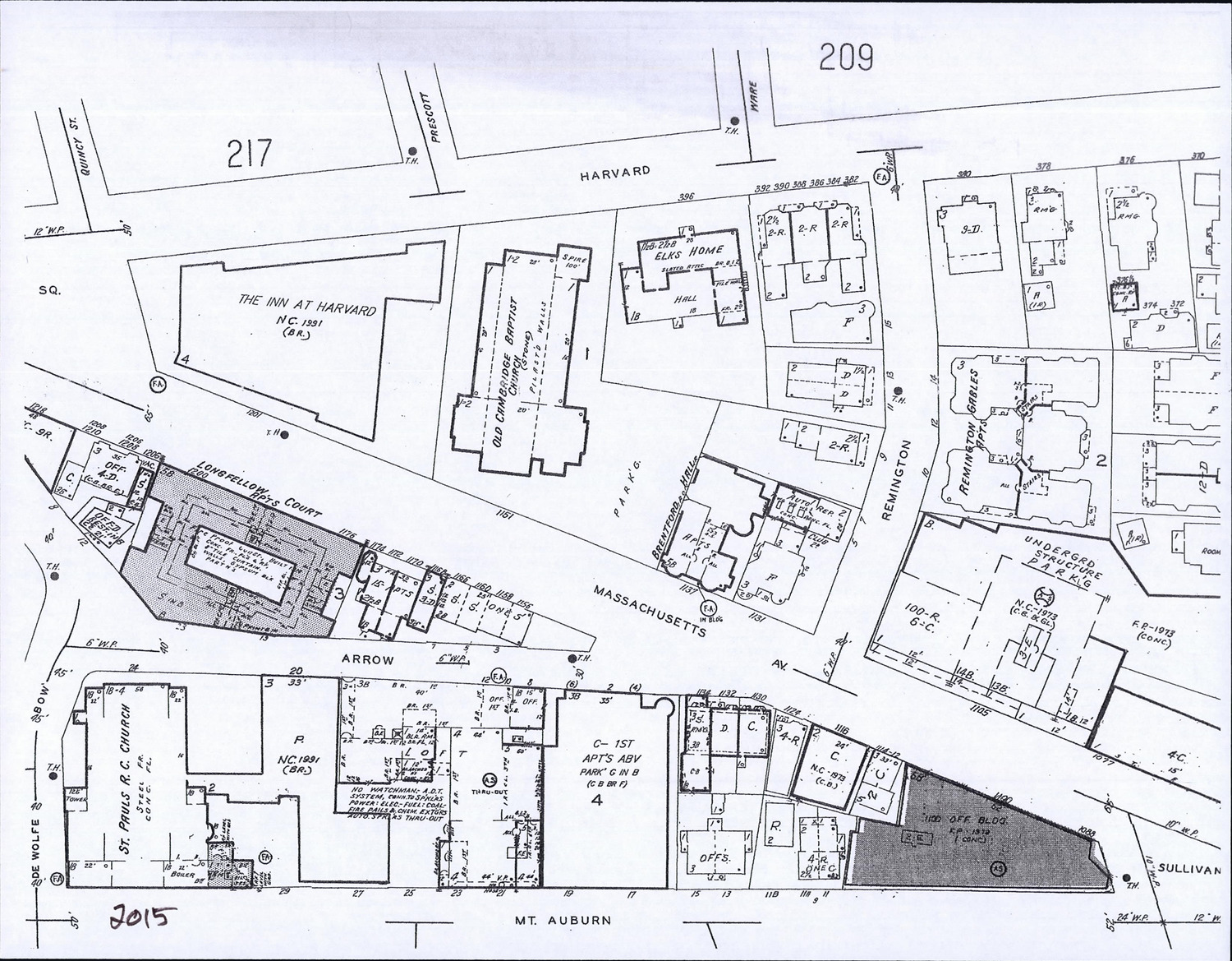
0000 Massachusetts Ave - Supplemental Material
- Neighborhood :
- Mid-Cambridge
- Riverside
- Document Type :
- Supplemental Material
- Research District :
- Mid-Cambridge
- Cambridgeport
- Citation :
- Cambridge Historical Commission, Digital Architectural Survey and History.
- Pages :
- 2
- Rights :
- Rights status not evaluated.
- Place Item :
- 0000 Massachusetts Ave
- Folder:
- 1088-1134 Mass Ave

