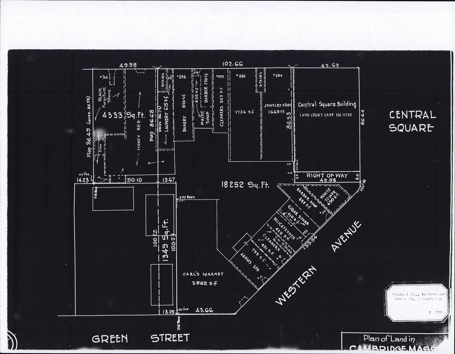
692-698 Massachusetts Ave - Plan View
- Neighborhood :
- Riverside
- Document Type :
- Plan View
- Research District :
- Cambridgeport
- Citation :
- Cambridge Historical Commission, Digital Architectural Survey and History.
- Pages :
- 2
- Rights :
- Rights status not evaluated.
- Place Item :
- 692-698 Massachusetts Ave
- Folder:
- 672-830 Mass Ave

