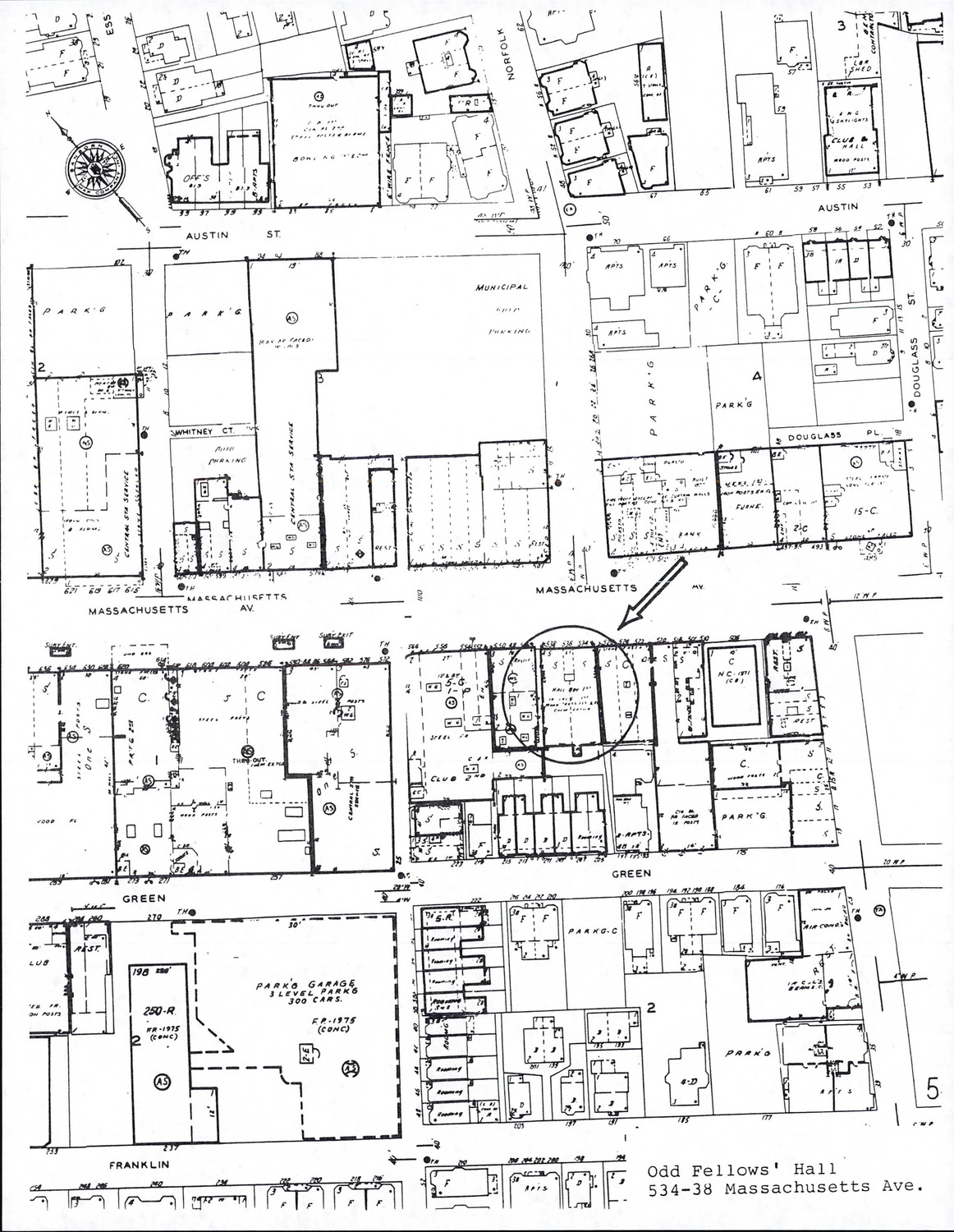
536 Massachusetts Ave - Supplemental Material
- Neighborhood :
- Cambridgeport
- Document Type :
- Supplemental Material
- Research District :
- Cambridgeport
- Citation :
- Cambridge Historical Commission, Digital Architectural Survey and History.
- Pages :
- 27
- Rights :
- Rights status not evaluated.
- Place Item :
- 536 Massachusetts Ave
- Folder:
- 536 Mass Ave


























