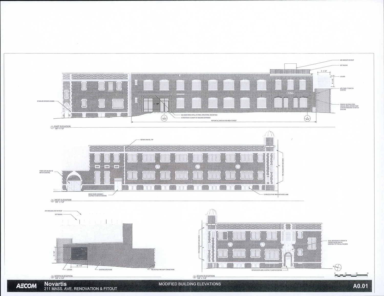
209-211 Massachusetts Ave - Plan View
- Neighborhood :
- The Port
- Document Type :
- Plan View
- Research District :
- Cambridgeport
- Citation :
- Cambridge Historical Commission, Digital Architectural Survey and History.
- Pages :
- 5
- Rights :
- Rights status not evaluated.
- Place Item :
- 209-211 Massachusetts Ave
- Folder:
- 1-385 Mass Ave




