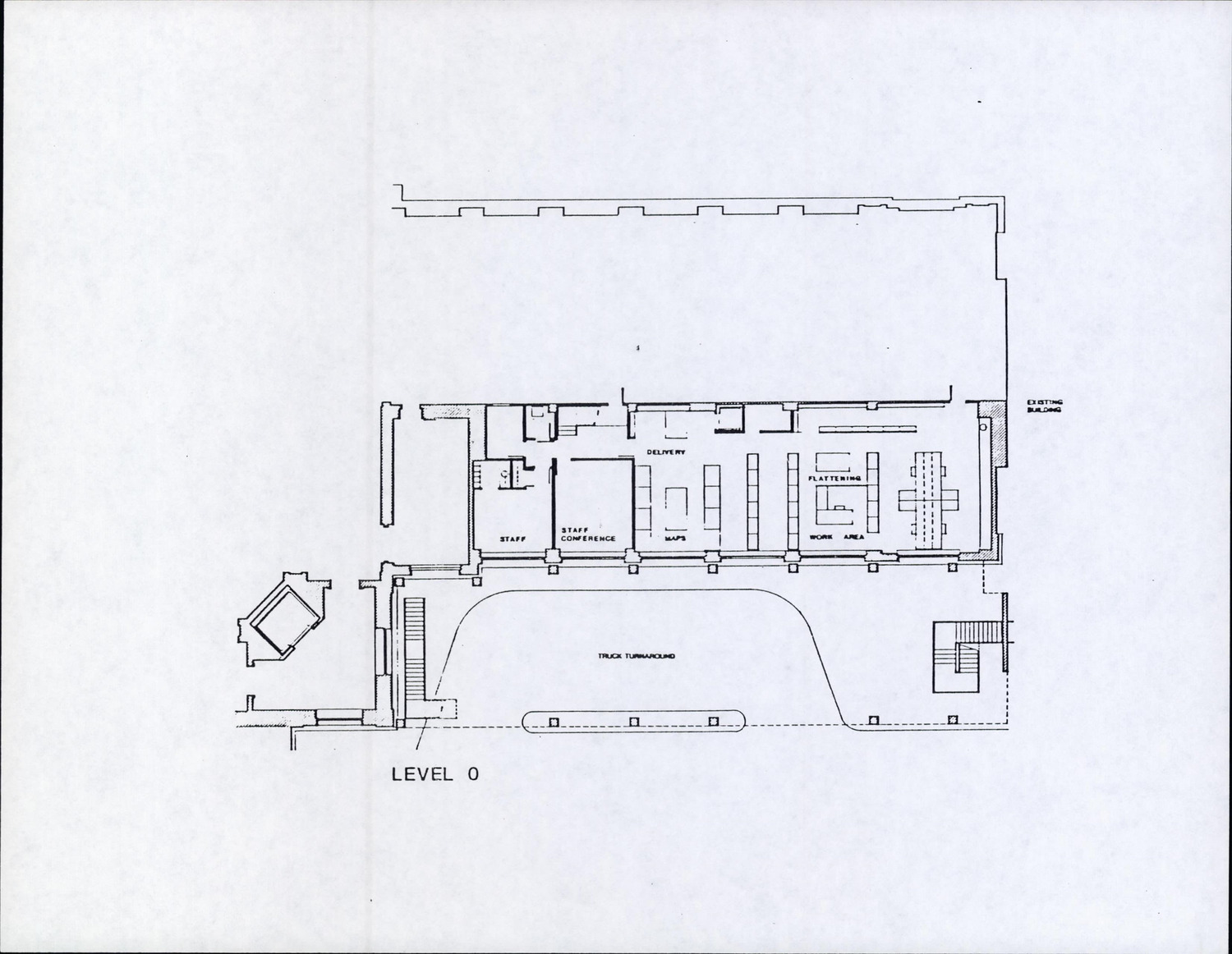
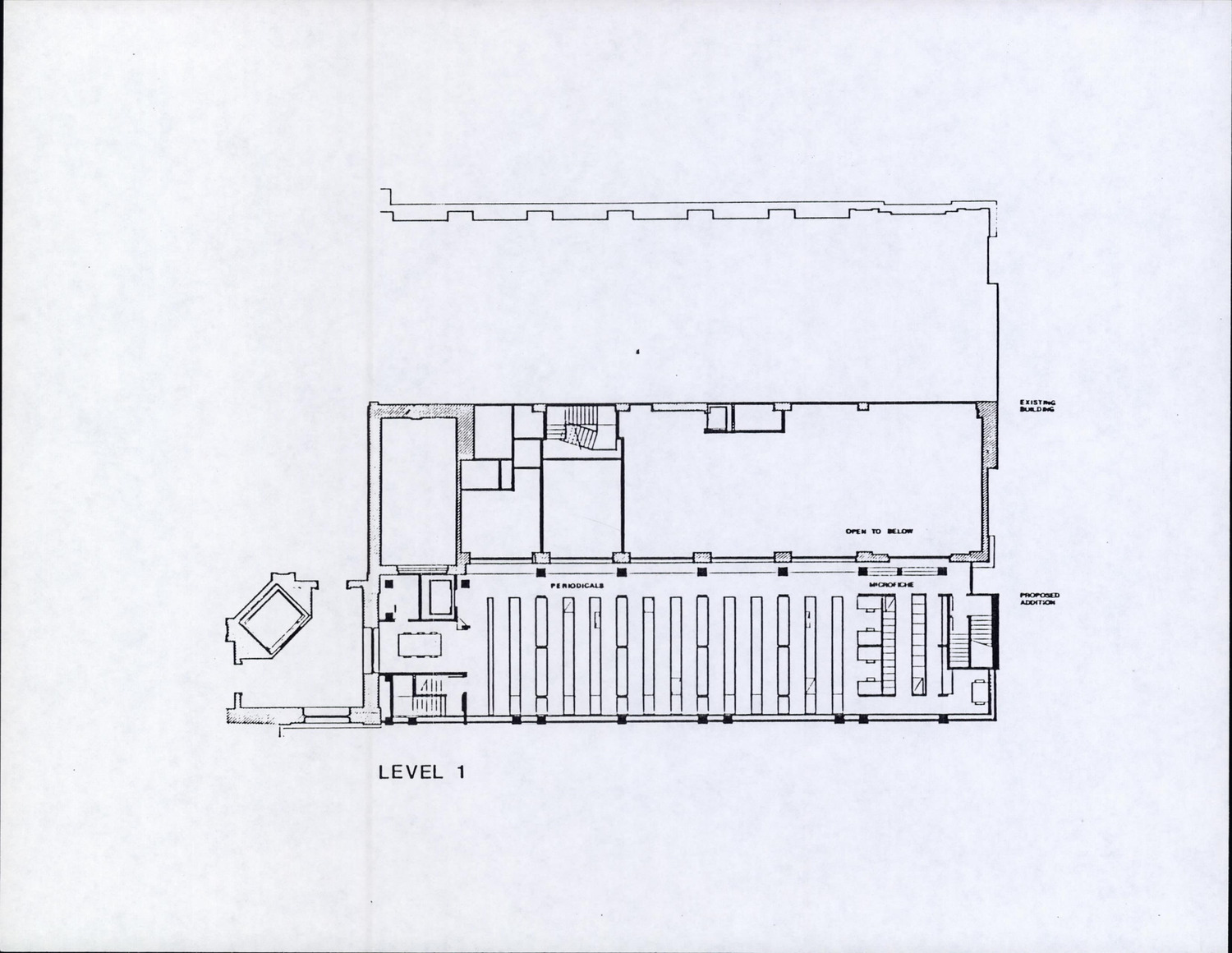
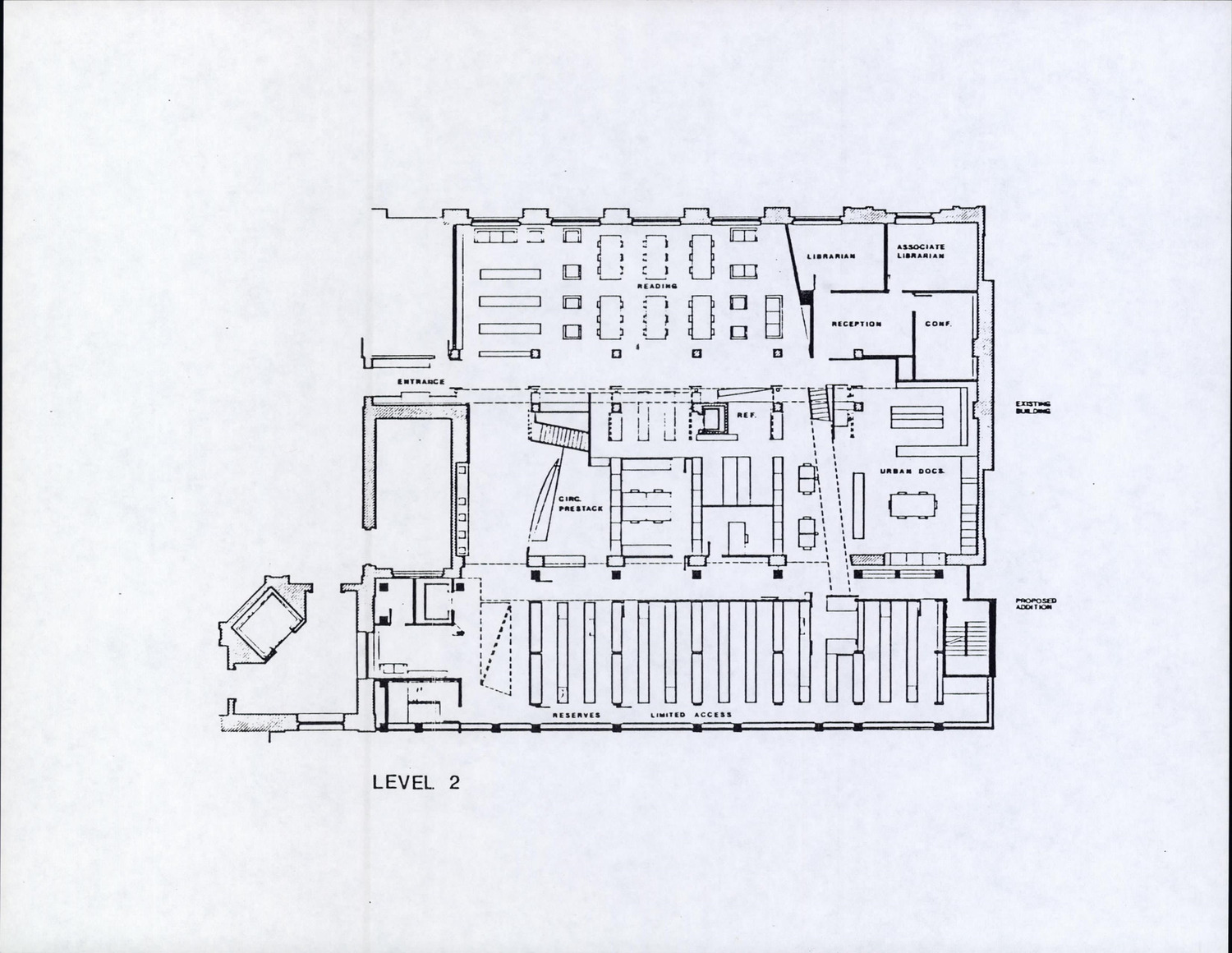
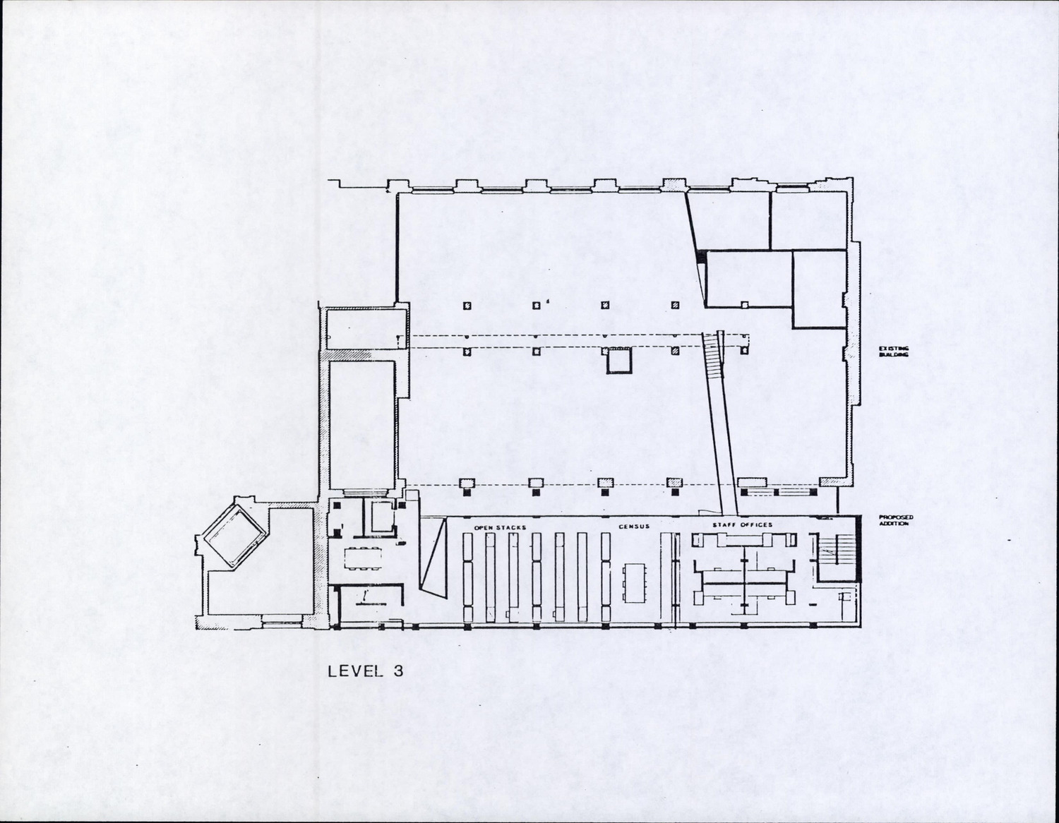
77 Massachusetts Ave - MIT Bldg 7 - Plan View
- Neighborhood :
- Area 2/MIT
- Document Type :
- Plan View
- Research District :
- Cambridgeport
- Citation :
- Cambridge Historical Commission, Digital Architectural Survey and History.
- Pages :
- 10
- Rights :
- Rights status not evaluated.
- Place Item :
- 77 Massachusetts Ave - MIT Bldg 7
- Folder:
- MIT P-R









