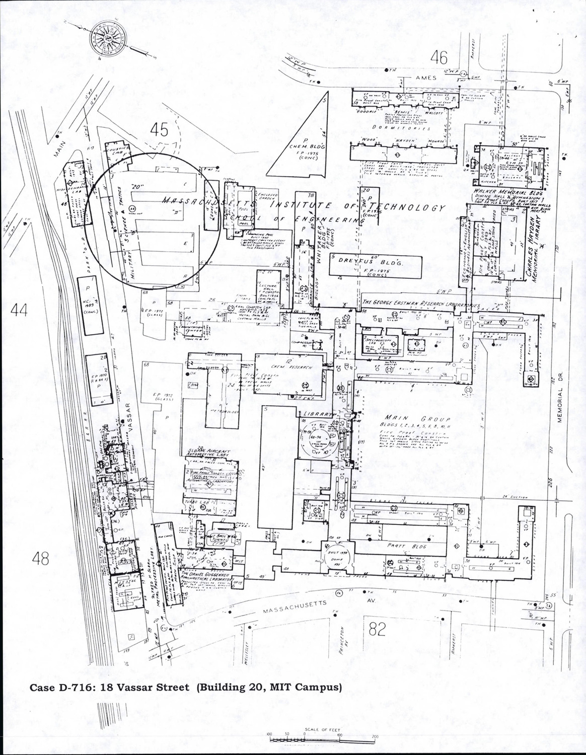
18 Vassar St - MIT Bldg 20 - Demolition Memo
- Neighborhood :
- Area 2/MIT
- Document Type :
- Demolition Memo
- Research District :
- Cambridgeport
- Citation :
- Cambridge Historical Commission, Digital Architectural Survey and History.
- Pages :
- 8
- Rights :
- Rights status not evaluated.
- Place Item :
- 18 Vassar St - MIT Bldg 20
- Folder:
- MIT Bldg 20







