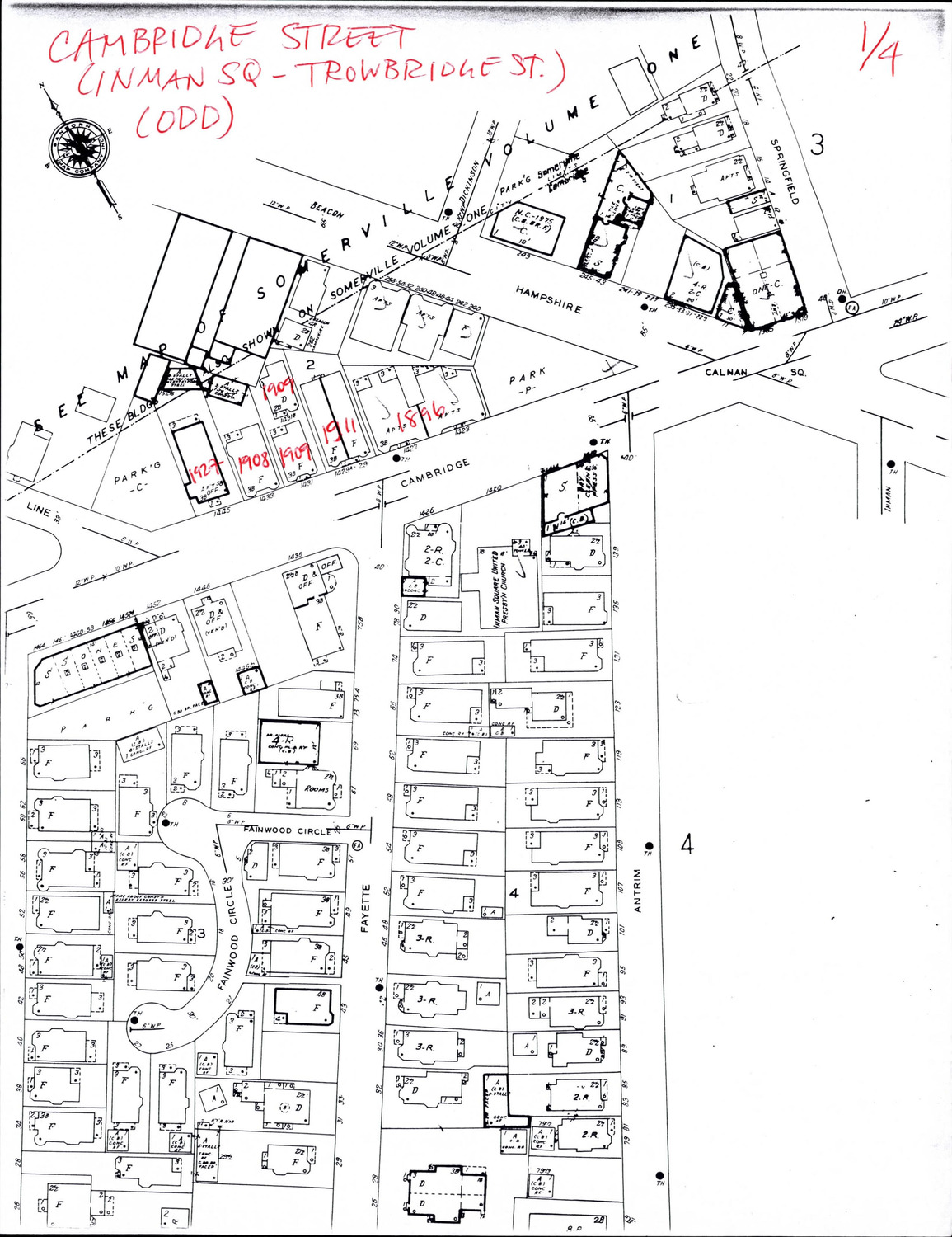
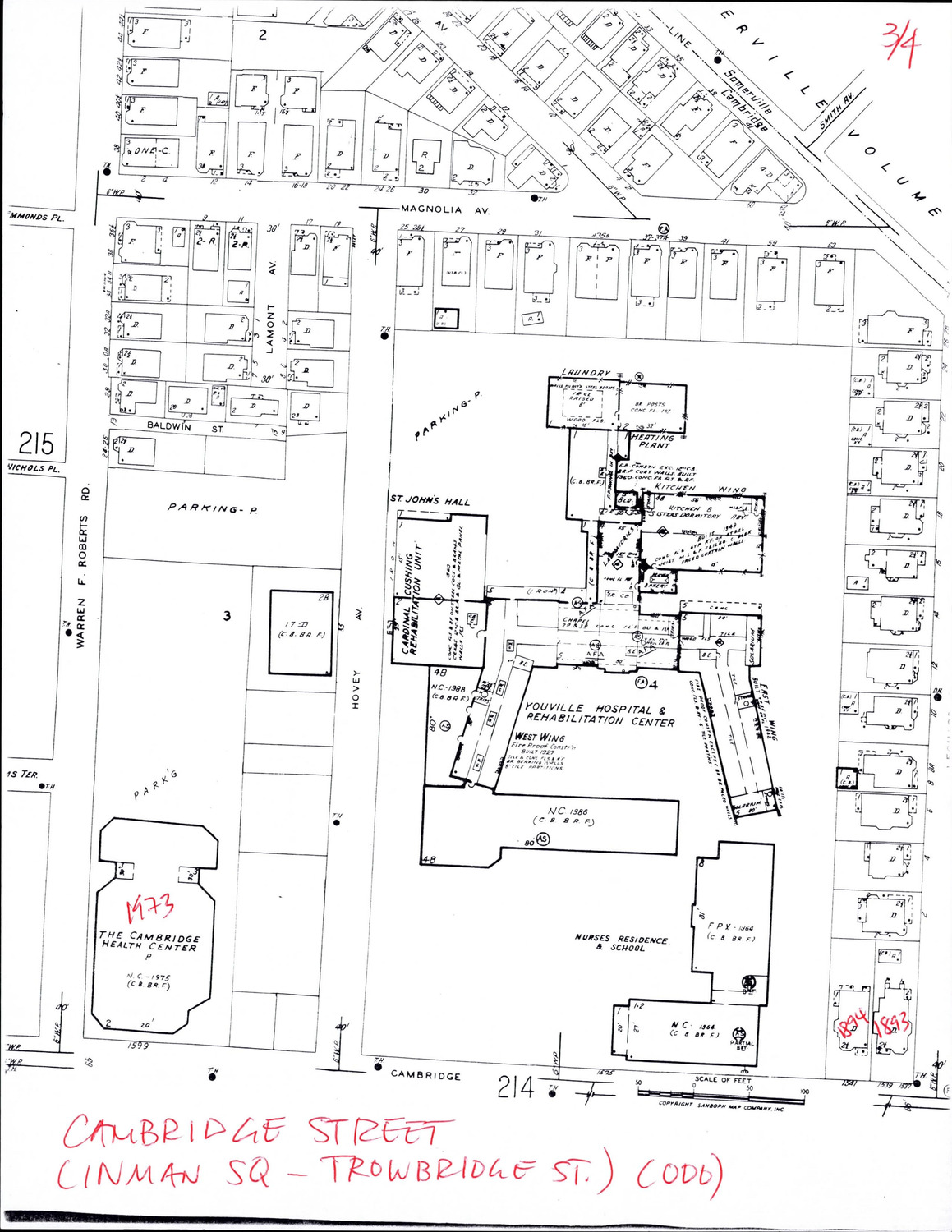
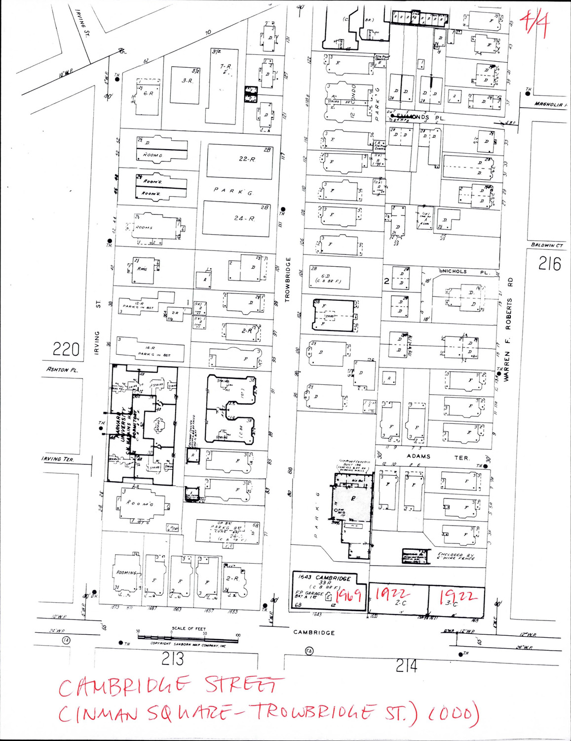
Cambridge St - Supplemental Material
- Neighborhood :
- Wellington-Harrington
- Document Type :
- Supplemental Material
- Research District :
- Cambridgeport
- Citation :
- Cambridge Historical Commission, Digital Architectural Survey and History.
- Pages :
- 4
- Rights :
- Rights status not evaluated.
- Place Item :
- Cambridge St



