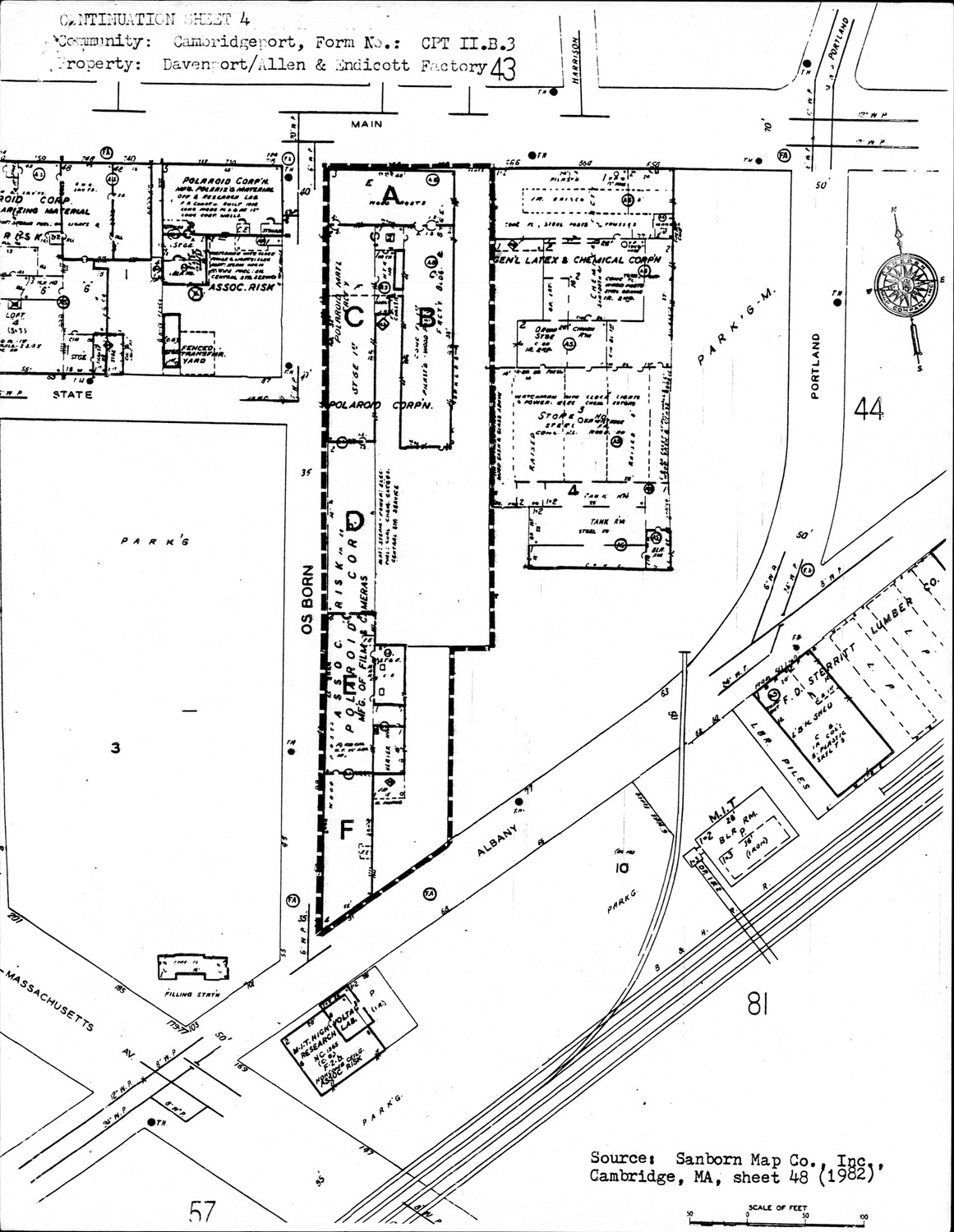
708 Main St - Research Form
- Neighborhood :
- The Port
- Document Type :
- Research Form
- Research District :
- Cambridgeport
- Citation :
- Cambridge Historical Commission, Digital Architectural Survey and History.
- Pages :
- 6
- Rights :
- Rights status not evaluated.
- Place Item :
- 708 Main St
- Folder:
- 640-708 Main St 2





