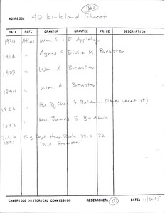
Kirkland St Even